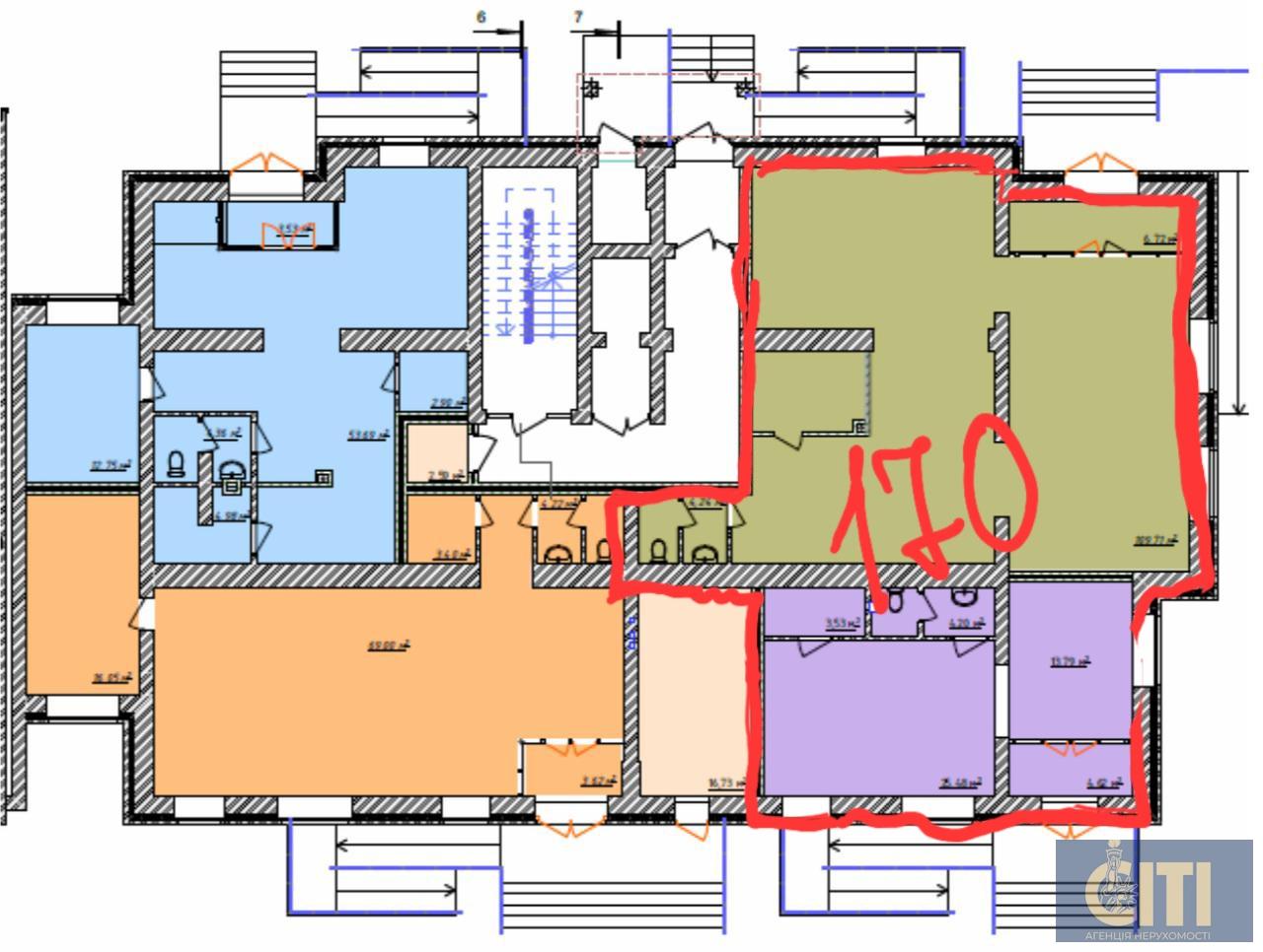
Фасадне приміщення, 170 кв.м у районі Малинського ринку
- 800$ кв.м.
Фасадне приміщення, 170 кв.м у районі Малинського ринку
- 800$ кв.м.
Деталі
Оновлення 1 Вересня, 2025 в 6:27 pm-
№ 23321
-
Ціна 800$ кв.м.
-
Площа 170 m²
-
Тип Приміщення вільного призначення
-
Статус Продаж
Опис
Продається фасадне приміщення комерційного призначення площею 170 кв.м у районі Малинського ринку, по вулиці Героїв Чорнобиля. Перший поверх, окремий вхід з пандусом, ще два входи з різних боків, зручна парковка для клієнтів. Цегляні стіни, висота стелі 3 метри, потужність електропостачання — 35 кВт, підключені всі центральні комунікації.
Можливий продаж частини приміщення — 50 або 120 кв.м. Це найвигідніша пропозиція в цьому районі по ціні — всього 800 доларів за квадратний метр.
Адреса
Відкрити на Google Maps-
Адреса: вулиця Героїв Чорнобиля, Житомир, Житомирська область, Україна
-
Місто: Житомир
-
Область: Житомирська область
Характеристики
Контактна інформація
Переглянути оголошенняСхожі оголошення
Продаж фасадного комерційного приміщення, 120 кв.м, район Малинського ринку
вул. Малинська (Оптовий ринок), Житомир, Житомирська область, Україна- №: 24124
- 120 m²
- Торгові площі, Офісне приміщення, Об'єкт сфери послуг, Приміщення вільного призначення
Оренда нежитлового приміщення 670 м², район Корбутівки
Гідропарк, Житомир, Житомирська область, Україна- №: 24088
- 670 m²
- Офісне приміщення, Об'єкт сфери послуг, Готель, готельний комплекс, Приміщення вільного призначення
Продаж об’єкта під комерційну діяльність по вулиці Кибальчича, район «Польова», 63 м²
Польова площа, Житомир, Житомирська область, Україна- №: 24063
- 63 m²
- Офісне приміщення, Об'єкт сфери послуг, Приміщення вільного призначення
Приміщення комерційного призначення, на вулиці Грушевського, 250 кв.м.
вулиця Михайла Грушевського, Житомир, Житомирська область, Україна- №: 23945
- 250 m²
- 4 сот.
- Офісне приміщення, Об'єкт сфери послуг, Приміщення вільного призначення
Продаж приміщення 227 кв. м. район Богунії за панчішною фабрикою.
Богунська вулиця, Житомир, Житомирська область, Україна- №: 23941
- 227 m²
- Приміщення вільного призначення
Продається комерційне приміщення в центрі Житомира, по вулиці Київська, 56 м²
вулиця Київська, Житомир, Житомирська область, Україна- №: 23589
- 56 m²
- Торгові площі, Офісне приміщення, Об'єкт сфери послуг, Приміщення вільного призначення




